Chung cư Chí Linh Center là dự án tọa lạc ngay vị trí “vàng” của TP Vũng Tàu do DIC phát triển. Dự án không chỉ thừa hưởng hạ tầng đồng bộ mà còn được ứng dụng nhiều công nghệ xây dựng tiên tiến cùng kiến trúc thời thượng. Với lợi thế đó, Chí Linh Center hứa hẹn trở thành điểm nhấn mới, góp phần nâng tầm giá trị và khẳng định dấu ấn sang trọng cho Khu đô thị Chí Linh.
Sơ lược về chủ đầu tư DIC Holdings
Công ty Xây dựng DIC Holdings (DIC Cons) là một trong những thương hiệu uy tín hàng đầu trong lĩnh vực xây dựng và phát triển bất động sản tại Việt Nam.
Được thành lập từ năm 1994, sau gần 30 năm hình thành và phát triển, DIC đã không ngừng lớn mạnh, mở rộng quy mô hoạt động ở nhiều lĩnh vực trọng điểm như thi công công trình dân dụng – công nghiệp, hạ tầng kỹ thuật, giao thông, thủy lợi cũng như đầu tư phát triển bất động sản và du lịch nghỉ dưỡng.
Với nền tảng kinh nghiệm vững chắc cùng tầm nhìn chiến lược dài hạn, DIC Cons đã triển khai thành công nhiều dự án quy mô lớn, trong đó nổi bật là Khu đô thị Chí Linh – một trong những khu đô thị hiện đại bậc nhất tại TP Vũng Tàu. Tiếp nối thành công đó, dự án Chí Linh Center Vũng Tàu được DIC phát triển như một biểu tượng mới, mang đến không gian sống đẳng cấp, góp phần thay đổi diện mạo đô thị và nâng tầm giá trị bất động sản tại địa phương.
Tổng quan về khu chung cư Chí Linh Center
Chí Linh Center Vũng Tàu – nay mang tên Vung Tau Centre Point – đang được đánh giá là một trong những dự án căn hộ cao cấp đáng sở hữu nhất tại Vũng Tàu. Thông tin về giá bán căn hộ Chí Linh Center hiện thu hút sự quan tâm lớn của giới đầu tư và khách hàng có nhu cầu an cư.
Thông tin chi tiết
| Tên dự án | Chí Linh Center |
| Vị trí | Nút giao đường Nguyễn Hữu Cảnh và đường 2/9, phường Nguyễn An Ninh, TP Vũng Tàu |
| Chủ đầu tư | DIC Group |
| Đơn vị thiết kế | A2B VietNam |
| Tổng diện tích | 7.428 m2 |
| Mật độ xây dựng | 58% |
| Loại hình sản phẩm | Căn hộ cao cấp |
| Quy mô | 02 tháp chung cư cao 25 tầng, 595 căn hộ cao cấp 1-2-3 diện tích 64-94 m2 |
| Bàn giao | 2024 |
| Giá bán | Từ 40 triệu/m2 |
| Pháp lý | Sổ hồng sở hữu lâu dài |
(Nguồn: Tổng hợp)
Vị trí dự án
Chí Linh Center sở hữu vị trí chiến lược tại ngã tư giao thoa giữa đường Nguyễn Hữu Cảnh và đường 2/9, thuộc phường Nguyễn An Ninh, TP Vũng Tàu. Đây là một trong những trục giao thông huyết mạch kết nối trực tiếp đến trung tâm thành phố, giúp dự án trở thành “mảnh đất vàng” trong lòng đô thị biển năng động.

Tiện ích kết nối
Nhờ vị trí đắc địa, cư dân Chí Linh Center dễ dàng tiếp cận đến các địa điểm trọng yếu chỉ trong thời gian ngắn:
- 2 phút: Bãi tắm Long Cung, Thủy Tiên.
- 5 phút: Trung tâm TP. Vũng Tàu, siêu thị Lotte Mart, Co.op Mart.
- 10 phút: Bãi Sau, Bãi Trước Vũng Tàu.
- 15 phút: Thành phố Bà Rịa và Trung tâm Hành chính Tỉnh.
- 40 phút: Thị xã Phú Mỹ, cụm cảng Cái Mép – Thị Vải.
- 45 phút: Hồ Tràm – Bình Châu.
- 1h30 phút: TP Hồ Chí Minh.
Tiềm năng hạ tầng khu vực
Theo Quyết định số 198 ngày 25/01 của UBND tỉnh Bà Rịa – Vũng Tàu, giai đoạn 2021 – 2025 địa phương sẽ triển khai 124 dự án hạ tầng giao thông với tổng vốn đầu tư lên đến 49.636,7 tỷ đồng. Trong đó, riêng TP Vũng Tàu sẽ có hơn 1.528 km đường được xây dựng mới, mở rộng và nâng cấp, góp phần thay đổi diện mạo toàn đô thị.
Một số dự án hạ tầng trọng điểm tác động trực tiếp đến giá trị Chí Linh Center có thể kể đến như:
- Tuyến cao tốc Biên Hòa – Vũng Tàu.
- Đường 991B nối Quốc lộ 51 đến hạ lưu cảng Cái Mép.
- Chỉnh trang trục đường Bãi Sau Vũng Tàu.
- Nâng cấp đường Bà Rịa – Châu Pha dài 18,5 km.
- Cải tạo tỉnh lộ 994 và đường trục chính Bà Rịa – Vũng Tàu.
- Cầu Phước An kết nối liên vùng.
Tiện ích dự án
Sở hữu hệ thống tiện ích đa dạng và hiện đại, Chí Linh Center Vũng Tàu mang đến trải nghiệm sống trọn vẹn cho cư dân. Ngay trong lòng dự án, chủ đầu tư đã quy hoạch đồng bộ hàng loạt hạng mục tiện ích cao cấp, đáp ứng nhu cầu từ nghỉ ngơi, vui chơi đến mua sắm và chăm sóc sức khỏe. Nổi bật trong đó có:
- Công viên cây xanh 5ha mang đến không gian trong lành, thoáng mát, là điểm nhấn cho lối sống xanh bền vững.
- Khu vui chơi giải trí dành cho trẻ em và người lớn, tạo không gian sinh hoạt cộng đồng và gắn kết gia đình.
- Khu hồ bơi nước mặn – nước ngọt thiết kế hiện đại, phù hợp cho cả nhu cầu thư giãn lẫn rèn luyện thể thao.
- Trung tâm thương mại với nhiều thương hiệu lớn, đáp ứng trọn vẹn nhu cầu mua sắm, ẩm thực và giải trí của cư dân.
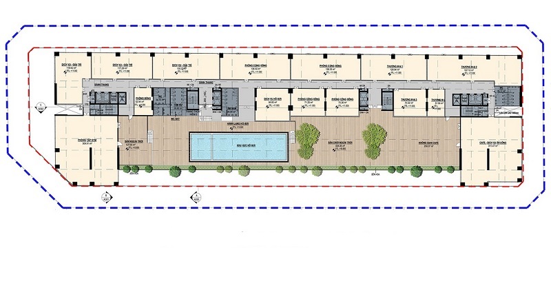
Mặt bằng dự án

Chí Linh Center Vũng Tàu được phát triển trên quỹ đất “vàng” rộng 7.428 m² ngay nút giao thương chiến lược với trục đường 2/9. Dự án được quy hoạch hiện đại gồm 2 block căn hộ cao cấp, thiết kế 25 tầng nổi và 2 tầng hầm, mang đến không gian sống sang trọng cùng nhiều lựa chọn đa dạng cho khách hàng.
Tổng thể dự án cung cấp ra thị trường 595 căn hộ cao cấp, được bố trí hợp lý nhằm tối ưu hóa công năng và trải nghiệm sống. Với thiết kế thông minh cùng sự phân bổ hài hòa giữa không gian an cư và thương mại, mặt bằng dự án Chí Linh Center không chỉ mang đến giá trị sử dụng cao mà còn đảm bảo tiềm năng đầu tư bền vững trong tương lai.




Thiết kế căn hộ
Theo định hướng quy hoạch, Chí Linh Center Vũng Tàu được phát triển trở thành một trung tâm căn hộ cao cấp kết hợp dịch vụ – giải trí, vừa đáp ứng nhu cầu an cư vừa tạo nên điểm đến hiện đại cho cộng đồng. Thiết kế tổng thể của dự án chú trọng tính khang trang, tiện nghi và an toàn, phù hợp với phong cách sống năng động tại thành phố biển.



5 lý do nên chọn chung cư Chí Linh Center Vũng Tàu
Chung cư Chí Linh Center không chỉ là nơi an cư lý tưởng mà còn là cơ hội đầu tư đầy tiềm năng. Dưới đây là những điểm nổi bật giúp dự án nhanh chóng chinh phục đông đảo khách hàng:
Vị trí trung tâm chiến lược
Tọa lạc ngay nút giao thương quan trọng, sở hữu hai mặt tiền đắt giá, trong đó nổi bật là trục đường Bình Giã (đường 2/9) – tuyến huyết mạch kết nối xuyên suốt toàn thành phố Vũng Tàu. Vị trí này mang đến khả năng kết nối linh hoạt, vừa thuận tiện cho cư dân sinh sống vừa gia tăng giá trị đầu tư dài hạn.

Tiện ích nội khu hiện đại
Dự án được quy hoạch đồng bộ với hệ thống tiện ích cao cấp: từ công viên cây xanh, hồ bơi, trung tâm thương mại, khu vui chơi đến dịch vụ chăm sóc sức khỏe. Tất cả tạo nên một không gian sống khép kín, nơi cư dân có thể tận hưởng cuộc sống tiện nghi ngay trong nội khu.
Thừa hưởng tiện ích ngoại khu của khu đô thị Chí Linh
Không chỉ dừng lại ở hệ thống tiện ích riêng, Chí Linh Center còn nằm trong khu đô thị Chí Linh – nơi hội tụ hàng loạt tiện ích đã hoàn thiện như sân golf, trường học, bệnh viện, trung tâm thể thao… Điều này giúp nâng cao chất lượng sống và mang lại sự thuận lợi tuyệt đối cho cư dân.
Thời điểm vàng để đầu tư
Dự án hiện đang trong giai đoạn mở bán, mang đến mức giá cạnh tranh và chính sách ưu đãi hấp dẫn. Đây là thời điểm lý tưởng để khách hàng vừa có thể sở hữu căn hộ cao cấp với chi phí hợp lý, vừa đón đầu tiềm năng gia tăng giá trị trong tương lai.
Tìm kiếm tiện ích xung quanh nơi bạn sống dễ dàng với công cụ Khám phá khu vực
Để đưa ra quyết định chính xác và an tâm khi chọn nơi an cư, công cụ Khám phá khu vực của Radanhadat.vn sẽ là trợ thủ đắc lực. Chỉ cần nhập vị trí của bạn, hệ thống sẽ ngay lập tức hiển thị khoảng cách đến siêu thị, bệnh viện, trường học và các tiện ích quan trọng khác xung quanh, giúp bạn dễ dàng đánh giá và lựa chọn nơi sống phù hợp nhu cầu.
Ví dụ: Nhập “chung cư Chí Linh Center“, bạn đã có thể kiểm tra chính xác:
- Khoảng cách từ vị trí này đến bệnh viện, trường học, siêu thị…
- Hoặc thiết lập bán kính 100m, 2km, 5km… để tìm các tiện ích phù hợp trong phạm vi mong muốn

>> Sử dụng công cụ Khám phá khu vực ngay
***Tuyên bố miễn trừ trách nhiệm:
Radanhadat.vn thực hiện tài liệu này với mục đích cung cấp thông tin tham khảo. Thông tin có thể được thay đổi mà không cần thông báo trước.
Chúng tôi nỗ lực thực hiện và đảm bảo tính chính xác của tài liệu nhưng không chịu trách nhiệm về tổn thất hoặc hậu quả từ việc sử dụng thông tin trong đây.
Chúng tôi xử lý thông tin dựa trên nguồn đáng tin cậy, nhưng chúng tôi không kiểm chứng nguồn tin và không đảm bảo tính chính xác.
Radanhadat.vn sở hữu độc quyền tài liệu và nội dung bên trong. Tài liệu không được phép sao chép toàn bộ hoặc một phần mà không có sự đồng ý của Radanhadat.vn.
Xem thêm:




Kênh kiến thức bất động sản, cẩm nang mua bán nhà đất thông thái


