Zenta Home 16 Quận 12 là dự án nhà phố cao cấp được phát triển bởi Công ty Zentaland, tọa lạc ngay trên trục đường Thạnh Lộc 16, chỉ cách ngã tư Ga vài phút di chuyển. Dự án gồm 32 căn nhà phố đồng bộ, thiết kế theo phong cách tân cổ điển sang trọng, mang đến không gian sống tinh tế và đẳng cấp giữa lòng đô thị.
Mỗi căn được xây dựng theo kết cấu 1 trệt, 1 lửng và 3 lầu, tối ưu công năng sử dụng cho cả ở và kinh doanh. Diện tích đa dạng từ 50m² đến 90m² giúp khách hàng dễ dàng lựa chọn sản phẩm phù hợp với nhu cầu.
Chủ đầu tư dự án Zenta Home 16 Quận 12 là ai?
Dự án Zenta Home 16 do Công ty Cổ phần Đầu tư Zentaland làm chủ đầu tư – một doanh nghiệp giàu kinh nghiệm trong lĩnh vực xây dựng và phát triển nhà ở. Thành lập từ năm 2010, Zentaland có trụ sở tại 46/40 Hà Huy Giáp, phường Thạnh Lộc, Quận 12, ngay khu vực triển khai dự án, giúp việc quản lý và giám sát công trình diễn ra chặt chẽ, hiệu quả.
Zentaland hoạt động đa ngành, đặc biệt mạnh trong xây dựng nhà ở dân dụng và phát triển hạ tầng kỹ thuật, khẳng định uy tín qua nhiều dự án quy mô. Hiện Zenta Home 16 đang được thi công khẩn trương, với tiến độ bám sát kế hoạch và chất lượng được kiểm soát nghiêm ngặt. Dự án dự kiến hoàn thiện và bàn giao vào quý III/2022, mang đến cho khách hàng những sản phẩm nhà phố đồng bộ, chỉn chu và sẵn sàng khai thác.
Tổng quan về dự án nhà phố Zenta Home 16 Quận 12
Mô hình Nhà Phố Khai Thác tại Zenta Home 16 được thiết kế linh hoạt, không cần mặt tiền lớn nhưng vẫn đảm bảo giao thương nhờ đường nội khu 12m. Với tư duy kết hợp House & Business, mỗi căn nhà vừa là tổ ấm cho nhiều thế hệ, vừa có thể khai thác kinh doanh hiệu quả, tạo tài sản sinh lời bền vững cho gia chủ.
Thông tin dự án
| Tên dự án | Zenta Home 16 |
| Vị trí | Đường Thạnh lộc 16, Phường Thạnh Lộc, Quận 12, TPHCM |
| Chủ đầu tư | Công ty Cổ phần Đầu tư Zentaland |
| Tổng diện tích | 2.868 m2 |
| Quy mô | 32 căn nhà phố liền kề:
– Kết cấu: 1 trệt 1 lửng 3 lầu – Đường nội bộ lộ giới 12m – Vỉa hè mỗi bên 3m |
| Diện tích | 50m2 – 60m2 – 90m2 |
| Pháp lý | Sổ hồng riêng sở hữu lâu dài |
| GIá bán | Từ 5,5 tỷ/căn |
(Nguồn: Tổng hợp)
Vị trí dự án

Zenta Home 16 tọa lạc ngay mặt tiền đường Thạnh Lộc 16, phường Thạnh Lộc, Quận 12 – vị trí trung tâm khu Bắc TPHCM, thuận tiện di chuyển đến các quận lân cận. Từ dự án, cư dân chỉ mất 3 phút đến Gò Vấp, 10 phút đến Ngã Năm Chuồng Chó, và 15 phút để đến sân bay Tân Sơn Nhất, Bình Thạnh, Phú Nhuận hay Tân Bình qua các trục đường lớn như Nguyễn Oanh, Phan Văn Trị, Nguyễn Kiệm.
Với lợi thế liền kề các quận trung tâm, Zenta Home 16 không chỉ mang lại sự thuận tiện trong kết nối giao thông, mà còn tăng mạnh giá trị đầu tư theo thời gian. Trong bối cảnh quỹ đất tại TPHCM ngày càng khan hiếm và dân cư không ngừng gia tăng, Zenta Home 16 trở thành cơ hội đầu tư sinh lời hiếm có, hứa hẹn tiềm năng tăng giá bền vững trong tương lai.
Tiện ích dự án
Zenta Home 16 mang đến mô hình Nhà Phố Khai Thác được quản lý theo tiêu chuẩn khu dân cư cao cấp (KDC, CC), thường chỉ thấy ở các khu compound quy mô lớn. Nhờ quy hoạch đồng bộ ngay từ đầu, dự án vừa đảm bảo chất lượng vận hành chuyên nghiệp, vừa tối ưu chi phí quản lý cho cư dân. Hệ thống hàng rào an ninh và bảo vệ 24/24 giúp cư dân an tâm sinh sống, trẻ nhỏ thoải mái vui chơi, và đỗ xe ngoài đường an toàn ngay trong nội khu.

Sở hữu vị trí trung tâm Quận 12, cư dân Zenta Home 16 chỉ mất 5–10 phút di chuyển để tiếp cận đầy đủ các tiện ích ngoại khu cao cấp:
- Thương mại: Điện Máy Xanh, Bách Hóa Xanh, Coopmart, Lotte Mart, Emart, BigC, chợ Cầu Đồng.
- Giáo dục: Hệ thống trường học từ mầm non đến THPT liền kề, cùng các trường đại học và cao đẳng như CĐ Điện Lực, CĐ Kinh Tế, ĐH Nguyễn Tất Thành.
- Hành chính – công cộng: Gần UBND phường Thạnh Lộc, Thạnh Xuân, UBND Quận 12 và Công an phường.
- Giải trí – thư giãn: Khu vui chơi trẻ em, nhà hàng, quán café và hồ bơi trong khu vực.
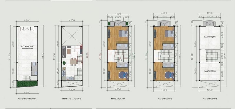
Mặt bằng dự án

Dự án Zenta Home 16 được quy hoạch gồm 32 căn nhà phố liền kề, xây dựng theo mẫu 1 trệt, 1 lửng, 3 lầu, lấy cảm hứng từ phong cách cổ điển sang trọng. Thiết kế này không chỉ mang vẻ đẹp tinh tế mà còn giữ được giá trị thẩm mỹ bền vững theo thời gian.



Cấu trúc từng tầng được bố trí hợp lý, tối ưu công năng:
- Tầng trệt: Gara ô tô, phòng khách, phòng ăn, bếp và nhà vệ sinh.
- Tầng lửng: Không gian tiếp khách hoặc sinh hoạt chung.
- Tầng 1: Hai phòng ngủ, mỗi phòng đều có WC riêng.
- Tầng 2: Hai phòng ngủ và hai WC, đảm bảo sự riêng tư tối đa.
- Tầng 3: Sân thượng rộng thoáng, phòng thờ và khu giặt phơi tiện dụng.
Tổng thể thiết kế mang đến không gian sống rộng rãi và riêng tư, phù hợp cho gia đình nhiều thế hệ. Các khu vực được phân tách khoa học, giúp gia chủ vừa tận hưởng sự thoải mái, vừa có thể linh hoạt kết hợp ở và kinh doanh trong cùng một không gian.
Giá bán nhà phố Zenta Home 16 Quận 12 mới nhất
Hiện nay, nhà phố Zenta Home 16 Quận 12 được chào bán với mức giá từ 5,5 tỷ đồng/căn (thiết kế 1 trệt, 1 lửng, 3 lầu). Đây là mức giá cạnh tranh so với các dự án cùng phân khúc tại khu Bắc TPHCM, đặc biệt khi xét đến vị trí trung tâm, thiết kế sang trọng và tiềm năng tăng giá mạnh mẽ trong tương lai.
Với mức đầu tư này, khách hàng không chỉ sở hữu một căn nhà phố hoàn thiện, mà còn là tài sản giá trị lâu dài, đáp ứng nhu cầu an cư, kinh doanh và đầu tư sinh lợi cùng lúc.
Lý do nên chọn mua nhà phố Zenta Home 16 Quận 12
Zenta Home 16 Quận 12 là lựa chọn lý tưởng cho những ai tìm kiếm một không gian sống hiện đại, vị trí thuận lợi và tiềm năng tăng giá bền vững. Với vị trí trung tâm, thiết kế tinh tế cùng chính sách tài chính linh hoạt, dự án đáp ứng trọn vẹn nhu cầu an cư và đầu tư của khách hàng.
Vị trí và kết nối giao thông
Dự án nằm ngay trung tâm Quận 12, liền kề Gò Vấp và kết nối nhanh đến các quận trung tâm TPHCM. Chỉ cách Ngã Tư Ga vài phút và ga Metro số 4 khoảng 500m, cư dân dễ dàng di chuyển qua các trục đường lớn như Hà Huy Giáp và Quốc lộ 1A, thuận tiện cho công việc và sinh hoạt hàng ngày.
Tiện ích và môi trường sống
Zenta Home 16 được quy hoạch đồng bộ và khép kín, có bảo vệ 24/24 và hàng rào an ninh giúp cư dân yên tâm sinh sống. Chỉ trong 5–10 phút di chuyển, cư dân có thể tiếp cận đầy đủ tiện ích thương mại, giáo dục, hành chính và giải trí, mang lại cuộc sống tiện nghi và năng động.
Sản phẩm và chính sách tài chính
Mỗi căn nhà phố được thiết kế 1 trệt, 1 lửng, 3 lầu, phong cách hiện đại pha cổ điển, tối ưu công năng và thẩm mỹ. Dự án sở hữu sổ hồng riêng, sở hữu lâu dài, đảm bảo tính pháp lý minh bạch và giá trị bền vững. Ngoài ra, khách hàng được ngân hàng hỗ trợ vay lên đến 70% giá trị căn nhà với chính sách ưu đãi hấp dẫn, giúp dễ dàng sở hữu ngôi nhà mơ ước.
Tìm kiếm tiện ích xung quanh nơi bạn sống dễ dàng với công cụ Khám phá khu vực
Để đưa ra quyết định chính xác và an tâm khi chọn nơi an cư, công cụ Khám phá khu vực của Radanhadat.vn sẽ là trợ thủ đắc lực. Chỉ cần nhập vị trí của bạn, hệ thống sẽ ngay lập tức hiển thị khoảng cách đến siêu thị, bệnh viện, trường học và các tiện ích quan trọng khác xung quanh, giúp bạn dễ dàng đánh giá và lựa chọn nơi sống phù hợp nhu cầu.
Ví dụ: Nhập “Zenta Home 16 Quận 12“, bạn đã có thể kiểm tra chính xác:
- Khoảng cách từ vị trí này đến bệnh viện, trường học, siêu thị…
- Hoặc thiết lập bán kính 100m, 2km, 5km… để tìm các tiện ích phù hợp trong phạm vi mong muốn

>> Sử dụng công cụ Khám phá khu vực ngay
***Tuyên bố miễn trừ trách nhiệm:
Radanhadat.vn thực hiện tài liệu này với mục đích cung cấp thông tin tham khảo. Thông tin có thể được thay đổi mà không cần thông báo trước.
Chúng tôi nỗ lực thực hiện và đảm bảo tính chính xác của tài liệu nhưng không chịu trách nhiệm về tổn thất hoặc hậu quả từ việc sử dụng thông tin trong đây.
Chúng tôi xử lý thông tin dựa trên nguồn đáng tin cậy, nhưng chúng tôi không kiểm chứng nguồn tin và không đảm bảo tính chính xác.
Radanhadat.vn sở hữu độc quyền tài liệu và nội dung bên trong. Tài liệu không được phép sao chép toàn bộ hoặc một phần mà không có sự đồng ý của Radanhadat.vn.
Xem thêm:




Kênh kiến thức bất động sản, cẩm nang mua bán nhà đất thông thái


