Một ngôi nhà hẻm đẹp 25m2 tại quận Tân Phú, TP.HCM đã chứng minh rằng, với thiết kế thông minh và sáng tạo, không gian nhỏ hẹp vẫn có thể trở thành một nơi sống lý tưởng cho gia đình 4 người, đồng thời tràn ngập mảng xanh.
Tổng quan về thiết kế nhà hẻm đẹp tại quận Tân Phú
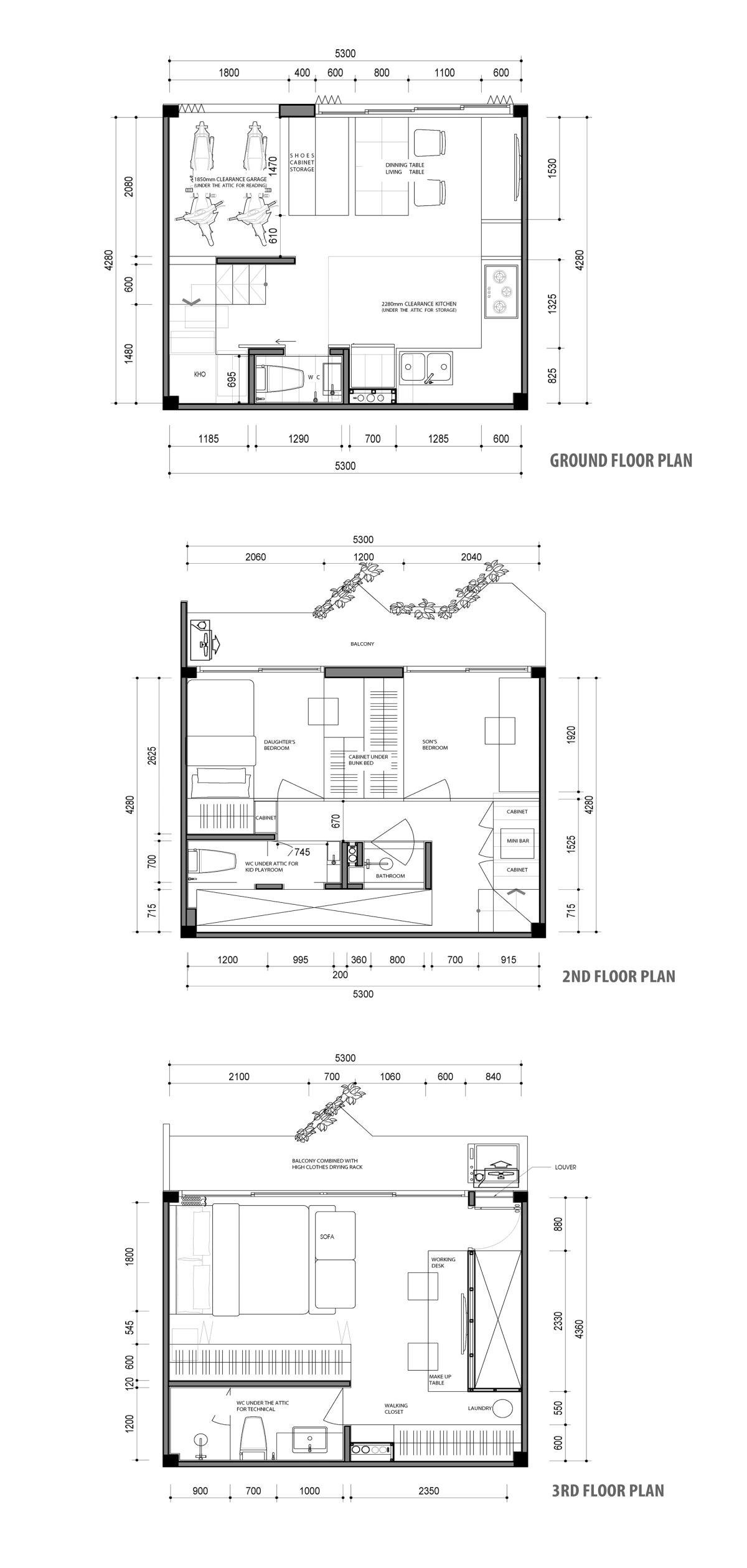
Ngôi nhà hẻm đẹp này được xây dựng trên khu đất rộng 25m2, tọa lạc trong một con hẻm nhỏ thuộc quận Tân Phú, TP.HCM. Với quy mô 3 tầng, ngôi nhà là nơi sinh sống của một gia đình 4 người, gồm vợ chồng và 2 con nhỏ. việc thiết kế một không gian sống vừa đủ sáng, thoáng, vừa đáp ứng nhu cầu sinh hoạt cho cả gia đình trong diện tích nhỏ hẹp là một thách thức lớn. Tuy nhiên, nhóm thiết kế đã áp dụng nhiều giải pháp sáng tạo để biến ngôi nhà này thành một tổ ấm tiện nghi, thông thoáng và tràn ngập mảng xanh, phù hợp với xu hướng sống xanh hiện đại.
Nhà hẻm đẹp không chỉ nổi bật bởi thiết kế thông minh mà còn bởi cách bố trí cây xanh hợp lý, giúp không gian luôn mát mẻ và gần gũi với thiên nhiên. Mặt tiền ngôi nhà được thiết kế với hệ giàn dây leo và cây xanh, tạo nên một mảng xanh thoáng mát, vừa đảm bảo sự riêng tư vừa giúp ngôi nhà nổi bật trong con hẻm chật hẹp. Các ô cửa mở ra không gian cây xanh không chỉ giúp lấy sáng và thông gió mà còn mang lại cảm giác thư thái cho gia đình.

Giải pháp thiết kế thông minh cho nhà hẻm đẹp 25m2
Tận dụng cao độ sàn và không gian đa chức năng
Một trong những giải pháp nổi bật để tối ưu diện tích cho nhà hẻm 25m2 này là tận dụng linh hoạt cao độ sàn. Nhóm thiết kế đã sử dụng gác lửng, giường tầng và không gian đa chức năng để đáp ứng nhu cầu sinh hoạt của gia đình 4 người.
- Tầng 1: Được thiết kế với không gian sinh hoạt chung, bao gồm phòng khách và bếp. Nhờ tối ưu từng góc nhỏ, khu vực này vừa gọn gàng vừa tiện nghi, đáp ứng nhu cầu sinh hoạt hàng ngày của cả gia đình.


- Tầng 2: Là không gian riêng cho 2 con. Phòng ngủ được thiết kế đa năng với hệ thống giường tầng kết hợp góc học tập. Giường tầng được thiết kế thông minh: giường phía dưới có thể kéo ra khi sử dụng và xếp gọn lại để tăng không gian chơi cho trẻ. Điều này không chỉ tiết kiệm diện tích mà còn tạo môi trường sống linh hoạt, phù hợp với nhu cầu của trẻ nhỏ.

- Phòng ngủ của bố mẹ: Được bố trí ở tầng trên cùng, có thêm góc nhỏ để thư giãn, đọc sách hoặc uống trà, mang lại cảm giác thoải mái và yên tĩnh. Các vật dụng như bàn làm việc và kệ sách được thiết kế gắn liền tường để tiết kiệm diện tích.



Sử dụng nội thất thông minh
Để tối ưu không gian trong nhà hẻm đẹp 25m2, nhóm thiết kế đã sử dụng nội thất thông minh, vừa tiết kiệm diện tích vừa đảm bảo công năng. Ví dụ:
- Giường tầng đa năng: Ngoài chức năng ngủ, giường tầng còn tích hợp góc học tập và không gian chơi cho trẻ.
- Bàn làm việc và kệ sách gắn tường: Giúp tiết kiệm diện tích sàn, tạo cảm giác gọn gàng và rộng rãi hơn.
- Không gian đa chức năng: Các khu vực như gác lửng được tận dụng để làm nơi thư giãn hoặc lưu trữ đồ đạc.
Những giải pháp này không chỉ giúp gia đình có đủ không gian sinh hoạt mà còn mang lại sự tiện nghi và thoải mái, phù hợp với phong cách sống hiện đại.


Bố trí cây xanh hợp lý
Một điểm nhấn đặc biệt của nhà hẻm đẹp này là sự hiện diện của các mảng xanh trong thiết kế. Nhóm kiến trúc sư đã khéo léo kết hợp cây xanh vào kiến trúc để tạo cảm giác thoáng mát và gần gũi với thiên nhiên:
- Mặt tiền nhà: Hệ giàn dây leo và cây xanh được bố trí ở mặt tiền, vừa làm mát không gian vừa tạo sự riêng tư cho gia đình. Các ô cửa mở ra không gian cây xanh giúp lấy sáng và thông gió hiệu quả.
- Bên trong nhà: Cây xanh được bố trí ở các góc nhỏ, như gác lửng và khu vực sinh hoạt chung, mang lại cảm giác thư thái và dễ chịu.
Nhờ cách bố trí này, ngôi nhà không chỉ thoáng đãng mà còn trở thành một không gian sống xanh, phù hợp với xu hướng kiến trúc bền vững hiện nay.


(Nguồn Vnexpress)
>> Xem thêm bài viết Thiết kế nhà đẹp 2 tầng với chi phí 1,3 tỷ cho vợ chồng trẻ
** Tuyên bố miễn trừ trách nhiệm: Radanhadat thực hiện bài viết này với mục đích cung cấp thông tin tham khảo. Thông tin có thể được thay đổi mà không cần thông báo trước. Chúng tôi nỗ lực thực hiện và đảm bảo tính chính xác của bài viết nhưng không chịu trách nhiệm về tổn thất hoặc hậu quả từ việc sử dụng thông tin trong đây.




Kênh kiến thức bất động sản, cẩm nang mua bán nhà đất thông thái


