Tecco Felice Homes Thuận An là dự án được phát triển bởi Tập đoàn Tecco có quy mô vừa. Công trình gồm 22 tầng nổi bật với tầng thượng được quy hoạch thành công viên sky park, mang đến trải nghiệm ngắm cảnh 360 độ hướng về TP Thủ Dầu Một, TP Biên Hòa và đặc biệt là biểu tượng Landmark 81 – vị trí đắt giá tại cửa ngõ phía Đông TPHCM.
Tổng quan về dự án Tecco Felice Homes Thuận An
Tecco Felice Homes gây ấn tượng mạnh với phong cách kiến trúc hiện đại và tinh tế, kết hợp cùng hệ thống tiện ích nội khu phong phú, đáp ứng đầy đủ nhu cầu của cộng đồng cư dân đẳng cấp. Nơi đây mang đến trải nghiệm sống khác biệt, cho phép bạn tận hưởng không gian xanh trong lành, thư giãn trọn vẹn mỗi ngày.
Thông tin chi tiết
| Tên dự án | Tecco Felice Homes |
| Vị trí | Số 01, Lê Thị Trung, Phường An Phú, Tp Thuận An, Tỉnh Bình Dương |
| Chủ đầu tư | Công Ty TNHH Đầu Tư Bất Động Sản An Phú Land (Thành viên Tecco Group) |
| Phát triển dự án | Công Ty Cổ Phần DXMD Việt Nam |
| Tổng diện tích | 8.511 m2 |
| Dân sổ dự kiến | 1.909 người |
| Mật độ xây dựng | 37.4% |
| Loại hình sản phẩm | Căn hộ chung cư, Shophouse |
| Quy mô | Gồm 1 khối tháp 22 tầng nổi + 1 tầng hầm, cung ứng 846 căn hộ |
| Diện tich | Từ 43.8m2 – 84.1m2 |
| Hình thức sở hữu | Lâu dài |
| Pháp lý | Sổ hồng riêng |
(Nguồn: Tổng hợp)
Vị trí dự án
Tecco Felice Homes tọa lạc trên trục đường Lê Thị Trung, phường An Phú, TP. Thuận An, Bình Dương – vị trí được xem là tâm điểm phát triển hạ tầng của thành phố. Từ đây, cư dân dễ dàng tiếp cận hàng loạt tuyến giao thông huyết mạch như Cao tốc Mỹ Phước – Tân Vạn, Quốc lộ 13, Đường 22/12, DT743, cùng mạng lưới khu công nghiệp quy mô lớn đang hoạt động mạnh mẽ.

Kết nối tiện ích và di chuyển thuận tiện
Dự án nằm giữa khu dân cư hiện hữu sầm uất, thừa hưởng đầy đủ hệ thống tiện ích cao cấp như siêu thị, trường học, bệnh viện, trung tâm thương mại và các dịch vụ giải trí.
- 3 phút: Chợ An Cơ, chợ An Bình Phú, chợ Vietsing, Tiểu học An Phú, UBND phường, bến xe An Phú
- 10 phút: Aeon Mall Canary, Vincom Plaza Dĩ An, Sân golf Sông Bé, KCN Việt Hương, VSIP 1, KCN Sóng Thần
- 15 phút: Lotte Mart, Bệnh viện Becamex, Bệnh viện Hạnh Phúc
- 20 phút: Giga Mall, Trung tâm hội nghị White Palace
- 30 phút: Sân bay Tân Sơn Nhất, Quận 1 – TPHCM
Đặc biệt, cư dân dễ dàng tiếp cận các trung tâm mua sắm lớn của Bình Dương chỉ trong vài phút, như Aeon Mall Canary, Vincom Plaza ngã tư 550 và Lotte Mart Bình Dương.
Đón đầu sóng hạ tầng và khai thác tiềm năng cho thuê

Hạ tầng giao thông tại khu vực liên tục được đầu tư mở rộng, giúp gia tăng mạnh mẽ giá trị bất động sản. Mặt tiền dự án dự kiến mở thêm tuyến PKV19 rộng 17m, đồng thời đường Lê Thị Trung sẽ được nâng cấp lên 24m, tạo nên trục kết nối thông suốt và hoàn thiện hơn cho cư dân tương lai.
Ngoài ra, bao quanh Tecco Felice Homes là hệ thống khu công nghiệp phát triển dày đặc như VSIP 1, Việt Hương, Sóng Thần, Đại Đăng… chỉ cách dự án vài phút di chuyển. Đây là khu vực tập trung đông đảo chuyên gia, kỹ sư và lao động chất lượng cao, đặc biệt là chuyên gia nước ngoài. Nhờ lợi thế “lõi công nghiệp”, thị trường căn hộ cho thuê tại đây luôn giữ mức nhu cầu cao và ổn định.
Tiện ích dự án
Quỹ đất dành cho tiện ích của Tecco Felice Homes Thuận An chiếm đến 37,4%, phần diện tích còn lại được bố trí hợp lý cho hạ tầng giao thông, công trình công cộng và cảnh quan. Cách quy hoạch này mang đến không gian sống thoáng đãng, tiện nghi và tràn đầy năng lượng cho cư dân.
Tiện ích nội khu

Dự án sở hữu hơn 25 tiện ích cao cấp, đáp ứng đầy đủ nhu cầu nghỉ ngơi – giải trí – tận hưởng ngay trong khuôn viên. Từ hồ bơi tràn viền, sân vườn trên cao, tuyến phố mua sắm – dạo bộ, khu vui chơi trẻ em đến sảnh đón tiêu chuẩn khách sạn 5 sao… tất cả tạo nên một môi trường sống tiện nghi và tươi mới mỗi ngày.
Một trong những điểm khác biệt nổi bật nhất của Tecco Felice Homes chính là Sky Park trên tầng thượng. Từ đây, cư dân có thể phóng tầm mắt 360 độ về trung tâm TP. Thủ Dầu Một, TP Biên Hòa và biểu tượng Landmark 81 của TPHCM. Đây là nơi lý tưởng để thư giãn sau một ngày dài – thưởng thức ly cà phê, đón gió trời và tận hưởng cảm giác “chill tại gia” giữa không gian trên cao độc đáo.
Tiện ích ngoại khu

Sở hữu vị trí thuận lợi, dự án được bao quanh bởi hàng loạt tiện ích hiện hữu, đáp ứng nhanh chóng mọi nhu cầu sinh hoạt, giáo dục và chăm sóc sức khỏe:
- Chợ – thương mại: Chợ An Cơ, Chợ Đông Đô, Chợ Bình Phú
- Mua sắm – giải trí: Aeon Mall Canary, Vincom Plaza Dĩ An, Lotte Mart, Sân golf Sông Bé
- Y tế – sức khỏe: Bệnh viện quốc tế Columbia, Bệnh viện Đa khoa An Phú, Bệnh viện Nhân Sinh, Bệnh viện Becamex
Mặt bằng dự án

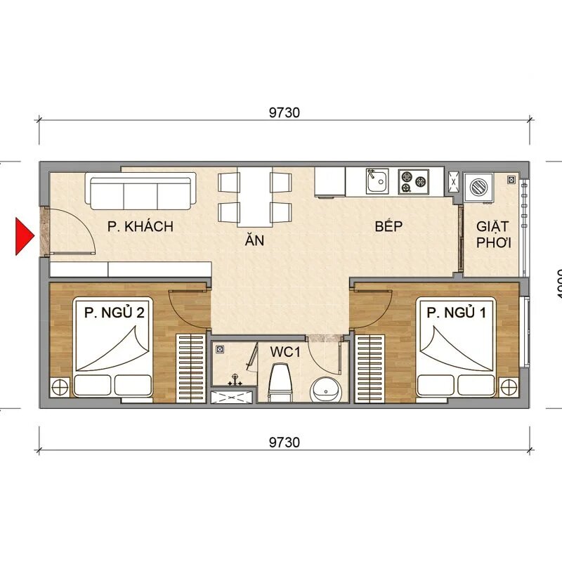
Mặt bằng dự án Tecco Felice Homes được quy hoạch trên quỹ đất rộng 8.511 m², phát triển một tháp căn hộ cao 22 tầng. Công trình được thiết kế theo bố cục hình chữ U, giúp tối ưu tầm nhìn, tăng khả năng đón gió – lấy sáng và đặt toàn bộ tiện ích nội khu vào khu vực trung tâm để tạo nên không gian sống sinh động, tiện nghi.

Dù không theo phong cách thiết kế quá mới lạ, Tecco Miền Nam đã khéo léo cải tiến các hạng mục tiện ích, mang đến sự trẻ trung, hài hòa và phù hợp với nhu cầu của cư dân trẻ hiện đại. Dự án cung cấp hơn 800 căn hộ với nhiều lựa chọn diện tích:





Nhà mẫu dự án
Thiết kế của Tecco Felice Homes Thuận An theo phong cách hiện đại, sang trọng, tạo nên sức hút lớn đối với thị trường bất động sản. Từng đường nét trong kiến trúc đều thể hiện sự tinh tế, chăm chút, từ không gian căn hộ đến hệ thống tiện ích nội – ngoại khu.
Các căn hộ được bố trí khoa học, tối ưu công năng và tận dụng tối đa ánh sáng tự nhiên, mang đến không gian sống thoáng đãng và thoải mái cho từng gia đình. Đồng thời, hệ thống tiện ích được khai thác đầy đủ để phục vụ trọn vẹn nhu cầu sinh hoạt – giải trí – thư giãn của cư dân.




Giá bán và cho thuê căn hộ Tecco Felice Homes Thuận An
Giá bán căn hộ Tecco Felice Homes hiện dao động từ 1,2 tỷ đồng cho căn hộ 2 phòng ngủ – mức giá cạnh tranh trong khu vực Thuận An, phù hợp cho cả an cư lẫn đầu tư cho thuê.
| Diện tích | Loại căn hộ | Giá bán dự kiến |
| 43 m² | 1 phòng ngủ | 1,0 – 1,05 tỷ |
| 48 m² | 2 phòng ngủ | 1,15 – 1,2 tỷ |
| 65 m² | 2 phòng ngủ | 1,4 – 1,5 tỷ |
| 82 – 84 m² | 3 phòng ngủ | 1,8 – 2,0 tỷ |
Bảng giá bán căn hộ Tecco Felice Homes Thuận An (Nguồn: Tổng hợp)
| Loại căn hộ | Diện tích | Phòng ngủ – WC | Giá thuê/tháng |
| 1PN | 43,8 m² | 1 PN – 1 WC | 4 triệu |
| 2PN | 47,7 m² | 2 PN – 1 WC | 5 triệu |
| 65,2 m² | 2 PN – 2 WC | 5,5 – 6 triệu | |
| 3PN | 82,8 m² | 3 PN – 2 WC | 7 – 8 triệu |
| 84,1 m² | 3 PN – 2 WC | 7 – 8 triệu |
Bảng giá cho thuê căn hộ Tecco Felice Homes Thuận An (Nguồn: Tổng hợp)
Đánh giá tiềm năng căn hộ Tecco Felice Homes Bình Dương
Tecco Felice Homes Thuận An từng tạo nên sức nóng ngay thời điểm mở bán tháng 8/2021 dù dịch Covid-19 đang ở giai đoạn căng thẳng. Đợt 1 “cháy hàng” nhanh chóng phần lớn đến từ những lợi thế nổi bật khiến dự án thu hút mạnh cả khách ở thực lẫn nhà đầu tư.
Giá bán cạnh tranh nhất thị trường
Yếu tố đầu tiên khiến Tecco Felice Homes trở nên nổi bật chính là mức giá rất hấp dẫn. Chỉ từ khoảng 1,1 tỷ/căn, tương đương 23–25 triệu/m², dự án đã tạo nên sự sôi động đáng kể tại khu vực Bình Dương.
Với mức giá mềm và tiến độ thanh toán chia nhỏ nhiều đợt, cả nhóm khách thu nhập trung bình hay nhân viên văn phòng đều có cơ hội sở hữu nhà ở thay vì tiếp tục thuê trọ. Đây cũng là lý do khiến lượng lớn khách ở thực và nhà đầu tư từ TPHCM quan tâm xuống tiền.
Chủ đầu tư uy tín
Tecco Felice Homes do An Phú Land phát triển, thuộc Tập đoàn Tecco – một thương hiệu có hơn 20 năm hoạt động và đã triển khai hơn 60 dự án trên 18 tỉnh thành. Hệ sinh thái dự án đa dạng, kinh nghiệm lâu năm và định hướng xây dựng không gian sống cân bằng giúp khách hàng yên tâm về tiến độ, chất lượng và pháp lý.

Giải pháp tài chính linh hoạt
Dự án được VietinBank và BIDV đồng hành, cung cấp gói vay lãi suất 0% cùng thời gian ân hạn đến lúc nhận nhà. Nhờ vậy, người mua chỉ cần chuẩn bị khoảng 30% giá trị căn hộ (tương đương 330 triệu cho căn 1,1 tỷ) để sở hữu tài sản. Mô hình tài chính này giúp nhà đầu tư dễ dàng xuống tiền, chờ giao nhà sau 2 năm và kỳ vọng biên lợi nhuận tốt mà không bị áp lực dòng tiền.
Tìm kiếm tiện ích xung quanh nơi bạn sống dễ dàng với công cụ Khám phá khu vực
Để đưa ra quyết định chính xác và an tâm khi chọn nơi an cư, công cụ Khám phá khu vực của Radanhadat.vn sẽ là trợ thủ đắc lực. Chỉ cần nhập vị trí của bạn, hệ thống sẽ ngay lập tức hiển thị khoảng cách đến siêu thị, bệnh viện, trường học và các tiện ích quan trọng khác xung quanh, giúp bạn dễ dàng đánh giá và lựa chọn nơi sống phù hợp nhu cầu.
Ví dụ: Nhập “Tecco Felice Homes Thuận An“, bạn đã có thể kiểm tra chính xác:
- Khoảng cách từ vị trí này đến bệnh viện, trường học, siêu thị…
- Hoặc thiết lập bán kính 100m, 2km, 5km… để tìm các tiện ích phù hợp trong phạm vi mong muốn

>> Sử dụng công cụ Khám phá khu vực ngay
***Tuyên bố miễn trừ trách nhiệm:
Radanhadat.vn thực hiện tài liệu này với mục đích cung cấp thông tin tham khảo. Thông tin có thể được thay đổi mà không cần thông báo trước.
Chúng tôi nỗ lực thực hiện và đảm bảo tính chính xác của tài liệu nhưng không chịu trách nhiệm về tổn thất hoặc hậu quả từ việc sử dụng thông tin trong đây.
Chúng tôi xử lý thông tin dựa trên nguồn đáng tin cậy, nhưng chúng tôi không kiểm chứng nguồn tin và không đảm bảo tính chính xác.
Radanhadat.vn sở hữu độc quyền tài liệu và nội dung bên trong. Tài liệu không được phép sao chép toàn bộ hoặc một phần mà không có sự đồng ý của Radanhadat.vn.
Xem thêm:




Kênh kiến thức bất động sản, cẩm nang mua bán nhà đất thông thái


