1/6
Cho thuê nhà xưởng KCN BECAMEX Chơn Thành, Bình Phước 38.837m2
Giá thoả thuận
38.837 m2
•-
-
Phường Minh Hưng, Tỉnh Đồng Nai
Phường Minh Hưng, Thị xã Chơn Thành, Tỉnh Bình Phước ( Cũ )
8 ngày trước
Tin đã được kiểm duyệt
Báo cáo tin đăng
Tổng quan
Cho thuê nhà xưởng – KCN BECAMEX Chơn Thành, Bình Phước – 38.837m2
Thông tin chi tiết
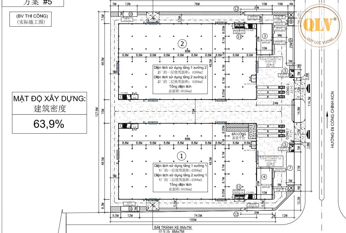
Vị trí: Khu Công Nghiệp Becamex – Chơn Thành, Tỉnh Bình Phước
Tổng diện tích khuôn viên: 63.904m2
Tổng diện tích xây dựng: 38.837m2
Cho thuê theo 2 phương án linh hoạt
Phương án 1
Khuôn viên: 63.904m2
Diện tích xây dựng: 38.837m2 gồm
Xưởng 1: 9.900m2
Xưởng 2: 9.900m2
Xưởng 3: 4.500m2
Xưởng 4: 4.500m2
Xưởng 5: 4.500m2
Xưởng 6: 4.500m2
Nhà văn phòng 1 (2 tầng): 451m2
Nhà văn phòng 2 (2 tầng): 451m2
Còn lại là các công trình phụ trợ khác
Phương án 2
Khuôn viên: 31.952m2
Diện tích xây dựng: 19.418m2 gồm
Xưởng 1: 9.900m2
Xưởng 2: 4.500m2
Xưởng 3: 4.500m2
Nhà văn phòng 2 (2 tầng): 451m2
Còn lại là các công trình phụ trợ khác
Tiện ích & đặc điểm
Hệ thống PCCC đạt chuẩn KCN
Kết cấu nhà xưởng kiên cố, khung thép tiền chế, nền bê tông chịu tải trọng lớn
Điện 3 pha công suất cao, hệ thống cấp thoát nước đầy đủ
Đường nội bộ rộng, xe container ra vào thuận tiện
Phù hợp sản xuất, kho bãi, logistics hoặc gia công xuất khẩu
Vị trí thuận lợi
Nằm trong KCN Becamex – Chơn Thành, khu công nghiệp trọng điểm phía Bắc Bình Dương, kết nối trực tiếp với Quốc lộ 13 và cao tốc TP Hồ Chí Minh – Chơn Thành – Đắk Nông
Liên hệ
CÔNG TY TNHH MTV QUÝ LỘC VƯỢNG
Hotline:
Website: https://nhaxuongchinhchu.vn
Thông tin chi tiết
Vị trí: Khu Công Nghiệp Becamex – Chơn Thành, Tỉnh Bình Phước
Tổng diện tích khuôn viên: 63.904m2
Tổng diện tích xây dựng: 38.837m2
Cho thuê theo 2 phương án linh hoạt
Phương án 1
Khuôn viên: 63.904m2
Diện tích xây dựng: 38.837m2 gồm
Xưởng 1: 9.900m2
Xưởng 2: 9.900m2
Xưởng 3: 4.500m2
Xưởng 4: 4.500m2
Xưởng 5: 4.500m2
Xưởng 6: 4.500m2
Nhà văn phòng 1 (2 tầng): 451m2
Nhà văn phòng 2 (2 tầng): 451m2
Còn lại là các công trình phụ trợ khác
Phương án 2
Khuôn viên: 31.952m2
Diện tích xây dựng: 19.418m2 gồm
Xưởng 1: 9.900m2
Xưởng 2: 4.500m2
Xưởng 3: 4.500m2
Nhà văn phòng 2 (2 tầng): 451m2
Còn lại là các công trình phụ trợ khác
Tiện ích & đặc điểm
Hệ thống PCCC đạt chuẩn KCN
Kết cấu nhà xưởng kiên cố, khung thép tiền chế, nền bê tông chịu tải trọng lớn
Điện 3 pha công suất cao, hệ thống cấp thoát nước đầy đủ
Đường nội bộ rộng, xe container ra vào thuận tiện
Phù hợp sản xuất, kho bãi, logistics hoặc gia công xuất khẩu
Vị trí thuận lợi
Nằm trong KCN Becamex – Chơn Thành, khu công nghiệp trọng điểm phía Bắc Bình Dương, kết nối trực tiếp với Quốc lộ 13 và cao tốc TP Hồ Chí Minh – Chơn Thành – Đắk Nông
Liên hệ
CÔNG TY TNHH MTV QUÝ LỘC VƯỢNG
Hotline:
0931 769 ***
Website: https://nhaxuongchinhchu.vn
Cho thuê nhà xưởng – KCN BECAMEX Chơn Thành, Bình Phước – 38.837m2
Thông tin chi tiết
Vị trí: Khu Công Nghiệp Becamex – Chơn Thành, Tỉnh Bình Phước
Tổng diện tích khuôn viên: 63.904m2
Tổng diện tích xây dựng: 38.837m2
Cho thuê theo 2 phương án linh hoạt
Phương án 1
Khuôn viên: 63.904m2
Diện tích xây dựng: 38.837m2 gồm
Xưởng 1: 9.900m2
Xưởng 2: 9.900m2
Xưởng 3: 4.500m2
Xưởng 4: 4.500m2
Xưởng 5: 4.500m2
Xưởng 6: 4.500m2
Nhà văn phòng 1 (2 tầng): 451m2
Nhà văn phòng 2 (2 tầng): 451m2
Còn lại là các công trình phụ trợ khác
Phương án 2
Khuôn viên: 31.952m2
Diện tích xây dựng: 19.418m2 gồm
Xưởng 1: 9.900m2
Xưởng 2: 4.500m2
Xưởng 3: 4.500m2
Nhà văn phòng 2 (2 tầng): 451m2
Còn lại là các công trình phụ trợ khác
Tiện ích & đặc điểm
Hệ thống PCCC đạt chuẩn KCN
Kết cấu nhà xưởng kiên cố, khung thép tiền chế, nền bê tông chịu tải trọng lớn
Điện 3 pha công suất cao, hệ thống cấp thoát nước đầy đủ
Đường nội bộ rộng, xe container ra vào thuận tiện
Phù hợp sản xuất, kho bãi, logistics hoặc gia công xuất khẩu
Vị trí thuận lợi
Nằm trong KCN Becamex – Chơn Thành, khu công nghiệp trọng điểm phía Bắc Bình Dương, kết nối trực tiếp với Quốc lộ 13 và cao tốc TP Hồ Chí Minh – Chơn Thành – Đắk Nông
Liên hệ
CÔNG TY TNHH MTV QUÝ LỘC VƯỢNG
Hotline:
Website: https://nhaxuongchinhchu.vn
Thông tin chi tiết
Vị trí: Khu Công Nghiệp Becamex – Chơn Thành, Tỉnh Bình Phước
Tổng diện tích khuôn viên: 63.904m2
Tổng diện tích xây dựng: 38.837m2
Cho thuê theo 2 phương án linh hoạt
Phương án 1
Khuôn viên: 63.904m2
Diện tích xây dựng: 38.837m2 gồm
Xưởng 1: 9.900m2
Xưởng 2: 9.900m2
Xưởng 3: 4.500m2
Xưởng 4: 4.500m2
Xưởng 5: 4.500m2
Xưởng 6: 4.500m2
Nhà văn phòng 1 (2 tầng): 451m2
Nhà văn phòng 2 (2 tầng): 451m2
Còn lại là các công trình phụ trợ khác
Phương án 2
Khuôn viên: 31.952m2
Diện tích xây dựng: 19.418m2 gồm
Xưởng 1: 9.900m2
Xưởng 2: 4.500m2
Xưởng 3: 4.500m2
Nhà văn phòng 2 (2 tầng): 451m2
Còn lại là các công trình phụ trợ khác
Tiện ích & đặc điểm
Hệ thống PCCC đạt chuẩn KCN
Kết cấu nhà xưởng kiên cố, khung thép tiền chế, nền bê tông chịu tải trọng lớn
Điện 3 pha công suất cao, hệ thống cấp thoát nước đầy đủ
Đường nội bộ rộng, xe container ra vào thuận tiện
Phù hợp sản xuất, kho bãi, logistics hoặc gia công xuất khẩu
Vị trí thuận lợi
Nằm trong KCN Becamex – Chơn Thành, khu công nghiệp trọng điểm phía Bắc Bình Dương, kết nối trực tiếp với Quốc lộ 13 và cao tốc TP Hồ Chí Minh – Chơn Thành – Đắk Nông
Liên hệ
CÔNG TY TNHH MTV QUÝ LỘC VƯỢNG
Hotline:
0931 769 ***
Website: https://nhaxuongchinhchu.vn
Liên hệ ngay:
0911 493 ***
Chi tiết
- Diện tích38.837 m2
- Pháp lý-
- Số phòng ngủ-
- Hướng-
- Hẻm-
- Rộng x Dài-
- Số tầng-
- Số toilet-
- Mức giá-
- Giá đất-
























































