1/4
CHO THUÊ NHÀ XƯỞNG KCN DẦU GIÂY, ĐN 21.850m
Giá thoả thuận
21.850 m2
•-
-
Xã Dầu Giây, Tỉnh Đồng Nai
Xã Bàu Hàm 2, Huyện Thống Nhất, Tỉnh Đồng Nai ( Cũ )
2 ngày trước
Tin đã được kiểm duyệt
Báo cáo tin đăng
Tổng quan
CHO THUÊ NHÀ XƯỞNG – KCN DẦU GIÂY, ĐN – 21.850m
Thông tin chi tiết
Vị trí: Khu Công Nghiệp Dầu Giây, Huyện Thống Nhất, Tỉnh Đồng Nai
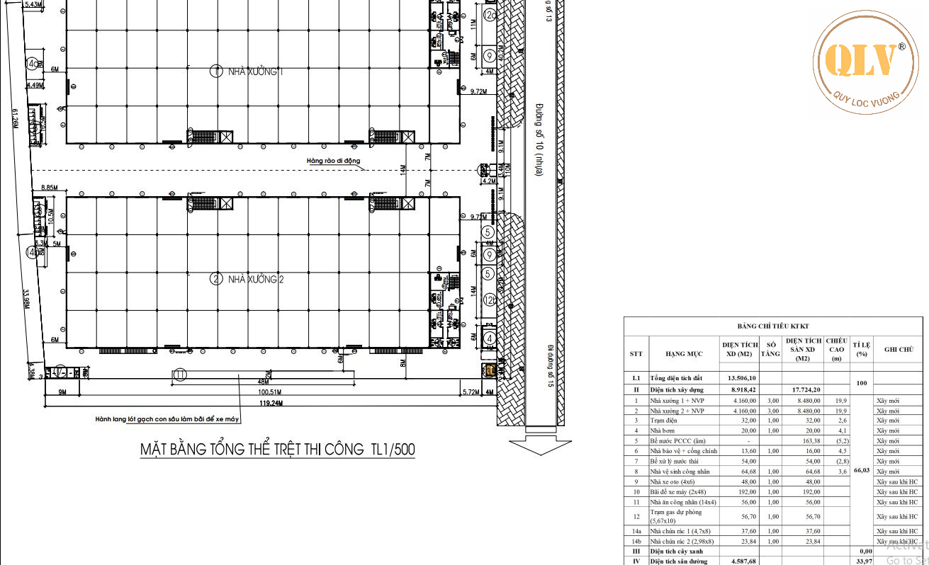
Tổng diện tích khuôn viên: 41.671m2
Tổng diện tích xây dựng: 21.850m2, bao gồm:
Nhà xưởng 1: 7.631m2 (70.4m x 108.4m)
Nhà xưởng 2: 5.062m2 (53.4m x 94.8m)
Nhà kho: 4.293m2 (53.4m x 80.4m)
Nhà văn phòng: 526m2 (15.7m x 36m)
Nhà ăn 1: 888m2
Nhà ăn 2: 1.209m2
Nhà xe: 1.727m2
Và các công trình phụ trợ khác
Tiện ích & hạ tầng
Nhà xưởng xây dựng kiên cố, thiết kế chuẩn công nghiệp, nền bê tông chịu tải tốt
Chiều cao xưởng phù hợp lắp đặt máy móc, hệ thống thông gió và chiếu sáng đầy đủ
Hệ thống PCCC tự động, điện 3 pha, nước máy, thoát nước hoàn chỉnh
Đường nội bộ rộng, xe container ra vào thuận tiện
Khuôn viên bố trí hợp lý, có nhà ăn, bãi xe, văn phòng làm việc, đáp ứng đầy đủ nhu cầu sản xuất
Vị trí đắc địa trong KCN Dầu Giây, thuận lợi kết nối đến TP. Biên Hòa, TP. Hồ Chí Minh, Bà Rịa – Vũng Tàu và các tỉnh lân cận
Để biết thêm thông tin chi tiết vui lòng liên hệ
CÔNG TY TNHH MTV QUÝ LỘC VƯỢNG
Hotline:
Website: https://nhaxuongchinhchu.vn
Thông tin chi tiết
Vị trí: Khu Công Nghiệp Dầu Giây, Huyện Thống Nhất, Tỉnh Đồng Nai
Tổng diện tích khuôn viên: 41.671m2
Tổng diện tích xây dựng: 21.850m2, bao gồm:
Nhà xưởng 1: 7.631m2 (70.4m x 108.4m)
Nhà xưởng 2: 5.062m2 (53.4m x 94.8m)
Nhà kho: 4.293m2 (53.4m x 80.4m)
Nhà văn phòng: 526m2 (15.7m x 36m)
Nhà ăn 1: 888m2
Nhà ăn 2: 1.209m2
Nhà xe: 1.727m2
Và các công trình phụ trợ khác
Tiện ích & hạ tầng
Nhà xưởng xây dựng kiên cố, thiết kế chuẩn công nghiệp, nền bê tông chịu tải tốt
Chiều cao xưởng phù hợp lắp đặt máy móc, hệ thống thông gió và chiếu sáng đầy đủ
Hệ thống PCCC tự động, điện 3 pha, nước máy, thoát nước hoàn chỉnh
Đường nội bộ rộng, xe container ra vào thuận tiện
Khuôn viên bố trí hợp lý, có nhà ăn, bãi xe, văn phòng làm việc, đáp ứng đầy đủ nhu cầu sản xuất
Vị trí đắc địa trong KCN Dầu Giây, thuận lợi kết nối đến TP. Biên Hòa, TP. Hồ Chí Minh, Bà Rịa – Vũng Tàu và các tỉnh lân cận
Để biết thêm thông tin chi tiết vui lòng liên hệ
CÔNG TY TNHH MTV QUÝ LỘC VƯỢNG
Hotline:
0931 769 ***
Website: https://nhaxuongchinhchu.vn
CHO THUÊ NHÀ XƯỞNG – KCN DẦU GIÂY, ĐN – 21.850m
Thông tin chi tiết
Vị trí: Khu Công Nghiệp Dầu Giây, Huyện Thống Nhất, Tỉnh Đồng Nai
Tổng diện tích khuôn viên: 41.671m2
Tổng diện tích xây dựng: 21.850m2, bao gồm:
Nhà xưởng 1: 7.631m2 (70.4m x 108.4m)
Nhà xưởng 2: 5.062m2 (53.4m x 94.8m)
Nhà kho: 4.293m2 (53.4m x 80.4m)
Nhà văn phòng: 526m2 (15.7m x 36m)
Nhà ăn 1: 888m2
Nhà ăn 2: 1.209m2
Nhà xe: 1.727m2
Và các công trình phụ trợ khác
Tiện ích & hạ tầng
Nhà xưởng xây dựng kiên cố, thiết kế chuẩn công nghiệp, nền bê tông chịu tải tốt
Chiều cao xưởng phù hợp lắp đặt máy móc, hệ thống thông gió và chiếu sáng đầy đủ
Hệ thống PCCC tự động, điện 3 pha, nước máy, thoát nước hoàn chỉnh
Đường nội bộ rộng, xe container ra vào thuận tiện
Khuôn viên bố trí hợp lý, có nhà ăn, bãi xe, văn phòng làm việc, đáp ứng đầy đủ nhu cầu sản xuất
Vị trí đắc địa trong KCN Dầu Giây, thuận lợi kết nối đến TP. Biên Hòa, TP. Hồ Chí Minh, Bà Rịa – Vũng Tàu và các tỉnh lân cận
Để biết thêm thông tin chi tiết vui lòng liên hệ
CÔNG TY TNHH MTV QUÝ LỘC VƯỢNG
Hotline:
Website: https://nhaxuongchinhchu.vn
Thông tin chi tiết
Vị trí: Khu Công Nghiệp Dầu Giây, Huyện Thống Nhất, Tỉnh Đồng Nai
Tổng diện tích khuôn viên: 41.671m2
Tổng diện tích xây dựng: 21.850m2, bao gồm:
Nhà xưởng 1: 7.631m2 (70.4m x 108.4m)
Nhà xưởng 2: 5.062m2 (53.4m x 94.8m)
Nhà kho: 4.293m2 (53.4m x 80.4m)
Nhà văn phòng: 526m2 (15.7m x 36m)
Nhà ăn 1: 888m2
Nhà ăn 2: 1.209m2
Nhà xe: 1.727m2
Và các công trình phụ trợ khác
Tiện ích & hạ tầng
Nhà xưởng xây dựng kiên cố, thiết kế chuẩn công nghiệp, nền bê tông chịu tải tốt
Chiều cao xưởng phù hợp lắp đặt máy móc, hệ thống thông gió và chiếu sáng đầy đủ
Hệ thống PCCC tự động, điện 3 pha, nước máy, thoát nước hoàn chỉnh
Đường nội bộ rộng, xe container ra vào thuận tiện
Khuôn viên bố trí hợp lý, có nhà ăn, bãi xe, văn phòng làm việc, đáp ứng đầy đủ nhu cầu sản xuất
Vị trí đắc địa trong KCN Dầu Giây, thuận lợi kết nối đến TP. Biên Hòa, TP. Hồ Chí Minh, Bà Rịa – Vũng Tàu và các tỉnh lân cận
Để biết thêm thông tin chi tiết vui lòng liên hệ
CÔNG TY TNHH MTV QUÝ LỘC VƯỢNG
Hotline:
0931 769 ***
Website: https://nhaxuongchinhchu.vn
Liên hệ ngay:
0987 528 ***
Chi tiết
- Diện tích21.850 m2
- Pháp lý
- Số phòng ngủ-
- Hướng-
- Hẻm-
- Rộng x Dài-
- Số tầng-
- Số toilet-
- Mức giá-
- Giá đất-



















































